Mieszkanie M4 o pow. 62 m2 Zamość ul. Wyszyńskiego, cena Sprzedany!
Oferujemy na sprzedaż mieszkanie położone na czwartym piętrze w 8-piętrowym budynku, z dużym (7 m2) balkonem typu loggia.
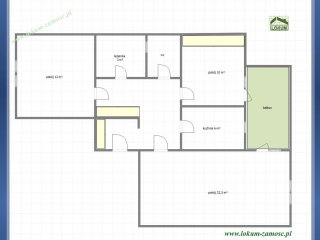
Powierzchnia użytkowa: 62,34 m2
W skład mieszkania wchodzą:
-
jasny salon z wyjściem na balkon, ( 22,5 m2 )
-
dwie ustawne sypialnie ( 12 i 10 m2 ), w tym jedna z wyjściem na balkon
-
oddzielnaa kuchnia, wraz z zabudową
-
łazienka z wanną
-
wc
-
przedpokój z pojemnymi szafami w zabudowie.
Stolarka okienna: okna PCV
Ogrzewanie i ciepła woda – z sieci miejskiej.
Forma własności: spółdzielcze własnościowe prawo do lokalu
Administracja budynku: Spółdzielnia im. J. Zamoyskiego w Zamościu
Mieszkanie jest gotowe do wprowadzenia, nie wymaga nakładów finansowych. Mieszkanie dostępne od zaraz.
Mieszkanie dobrze zlokalizowane. W bliskim sąsiedztwie dworzec autobusowy, przystanki komunikacji miejskiej, przedszkole, plac zabaw, szkoła podstawowa, apteki, sieć sklepów.
Zapraszamy również na naszą stronę: https://www.facebook.com/Agencja-Nieruchomości-Lokum-1233183243362013
Gwarantujemy bezpieczną, rzeczowo-prawną obsługę transakcji.
Oferujemy:
- POŚREDNICTWO W SPRZEDAŻY NIERUCHOMOŚCI
- BEZPŁATNĄ I PROFESJONALNĄ POMOC W WYBORZE NAJKORZYSTNIEJSZEJ OFERTY KREDYTOWEJ. PONAD 25 BANKÓW W JEDNYM MIEJSCU.
- WYKONUJEMY ŚWIADECTWA CHARAKTERYSTYKI ENERGETYCZNEJ
- POMOC W WYPROWADZENIU TRUDNEGO STANU PRAWNEGO NIERUCHOMOŚCI
Prezentacja nieruchomości po wcześniejszym umówieniu z przedstawicielem biura.
Wraz z Właścicielami zwracamy się z prośbą o uszanowanie prywatności i nie przybywanie na miejsce bez zapowiedzi i opiekuna z biura nieruchomości.
Niniejsza oferta jest informacją handlową i nie może być uznawana za ofertę w rozumieniu art. 66 ust. 1 Kodeksu Cywilnego. Stanowi ona zaproszenie do rokowań w rozumieniu art. 71 Kodeksu Cywilnego.
Informujemy iż wszystkie materiały oraz zdjęcia znajdujące się na naszych stronach są naszego autorstwa, stanowią własność Agencji Nieruchomości LOKUM i prawa autorskie są zastrzeżone. Kopiowanie, przetwarzanie czy też rozpowszechnianie tych materiałów w całości lub w części bez naszej zgody jest zabronione, jak również stanowi naruszenie praw autorskich, co za tym idzie będzie zgłaszane odpowiednim organom. Podstawa prawna Dz.U. 94 nr24, poz 83, spros.: Dz.U. 94 nr43, poz 17




























